Sist3ma immobiliare snc

Via delle Ville, 493
55018 Capannori LU

Tel. 0583 920443
sist3ma.it@gmail.com
www.sist3ma.it

P.IVA 02191660469

Villa In Vendita a Capannori
Codice:
Villa 2 appartamenti
Città:
Capannori (Segromigno in Monte)
Categoria:
Villa
Locali:
8
Camere:
5
Bagni:
4
Mq:
200
Posti auto:
5
Mq Giardino:
220
Terrazzi:
1
Classe energetica:
In fase di valutazione
Stato Immobile:
In Costruzione
Grado:
Signorile
Posizione:
Campagna
Panorama:
Vista Aperta
Lati Liberi:
4
Giardino:
Privato
Persiana:
Persiana Metallo
Isolamento termico:
Cappotto esterno
Descrizione
Un'Esclusiva a Segromigno, villetta indipendente in fase di ristrutturazione elevata su due piani con giardino e 5 posti auto.
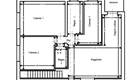
La villetta attualmente al grezzo completata di cappotto termico persiane in alluminio e divisioni interne e tetto si compone da un appartamento al piano terra con ingresso indipendente così suddiviso ( ancora modificabile) ingresso 7 Soggiorno cucina, due camere matrimoniali, due bagni, due posti auto di proprietà, giardino privato, spazi a comune.
Piano primo, ingresso indipendente, soggiorno cucina, due camere matrimoniali e una camera singola ( ancora modificabile ) due bagni due posti auto, giardino privato e spazi condominiali.
L'immobile può essere acquistato anche separatamente piano terra o primo a Euro 125.000 l'uno.
La presente offerta non costituisce proposta contrattuale e deve pertanto ritenersi meramente illustrativa.
Qr Code