Villa In Vendita a Capannori

Villa In Vendita a Capannori

Capannori (Marlia) - Marlia
305.000 €
Codice:Villa marl 320
Caratteristiche principali
300
8
Locali
4
Camere
3
Bagni
Descrizione
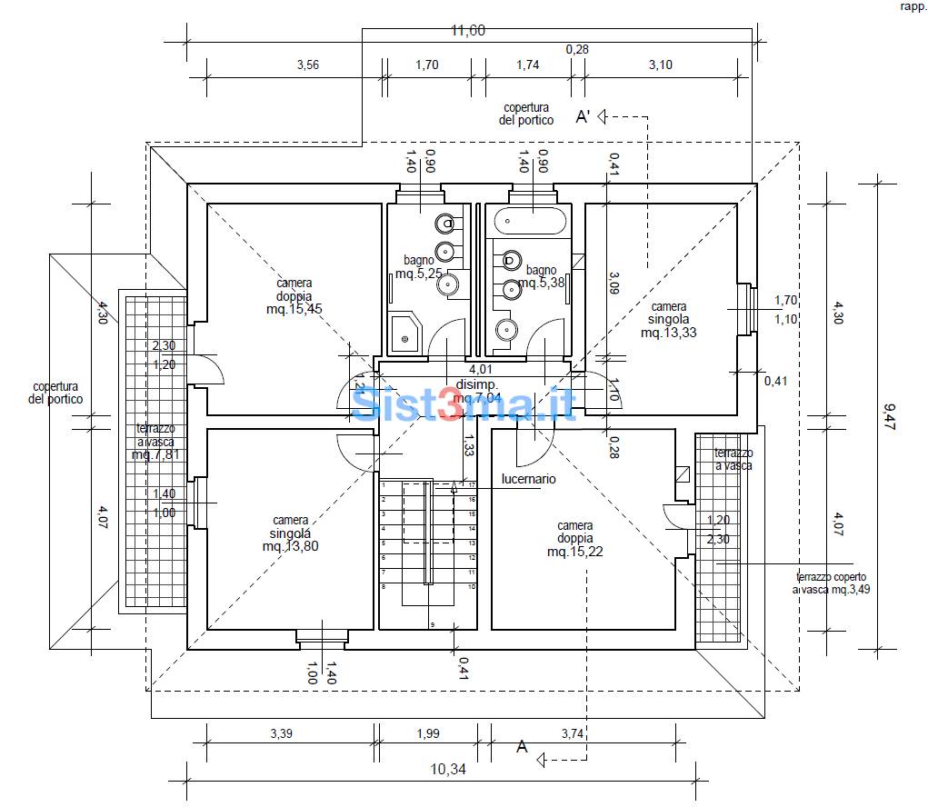
Villa al grezzo a Marlia, su due livelli escluso taverna, così composta: al pian terreno ingresso, soggiorno, sala da pranzo, cucina abitabile, bagno con doccia e ripostiglio, al primo piano due camere matrimoniali con balcone, due camere singole di cui una con balcone e due bagni uno con vasca e uno con doccia. Corredata da giardino di 800 mq circa,veranda, soffitta ad uso ripostiglio e ampia taverna di 120 mq divisa in tre locali più un bagno con boccia.
Caratteristiche
Codice:
Villa marl 320
Città:
Capannori (Marlia)
Categoria:
Villa
Locali:
8
Camere:
4
Bagni:
3
Mq:
300
Posti auto:
6
Mq Giardino:
500
Balconi:
2
Mq Balcone:
10,11
Piano:
2
Anno:
2013
Classe energetica:
In fase di valutazione
Stato Immobile:
In Costruzione
Grado:
Signorile
Panorama:
Vista Aperta
Giardino:
Privato
Arredi:
Non Arredato
Tipo Cucina:
Abitabile
Riscaldamento:
Da Creare
Visita l'annuncio sul tuo telefono
QR Code
Vuoi avere più dettagli?
Cookie preference