Porzione di casa In Vendita a Capannori

Porzione di casa In Vendita a Capannori

Capannori (Capannori centro) - via Romana, 200
295.000 €
Codice:TRTC Capa 310 B
Caratteristiche principali
140
4
Locali
3
Camere
3
Bagni
Descrizione
CAPANNORI CENTRO terratetto centrale in classe "B", corredato da giardino e due posti auto.
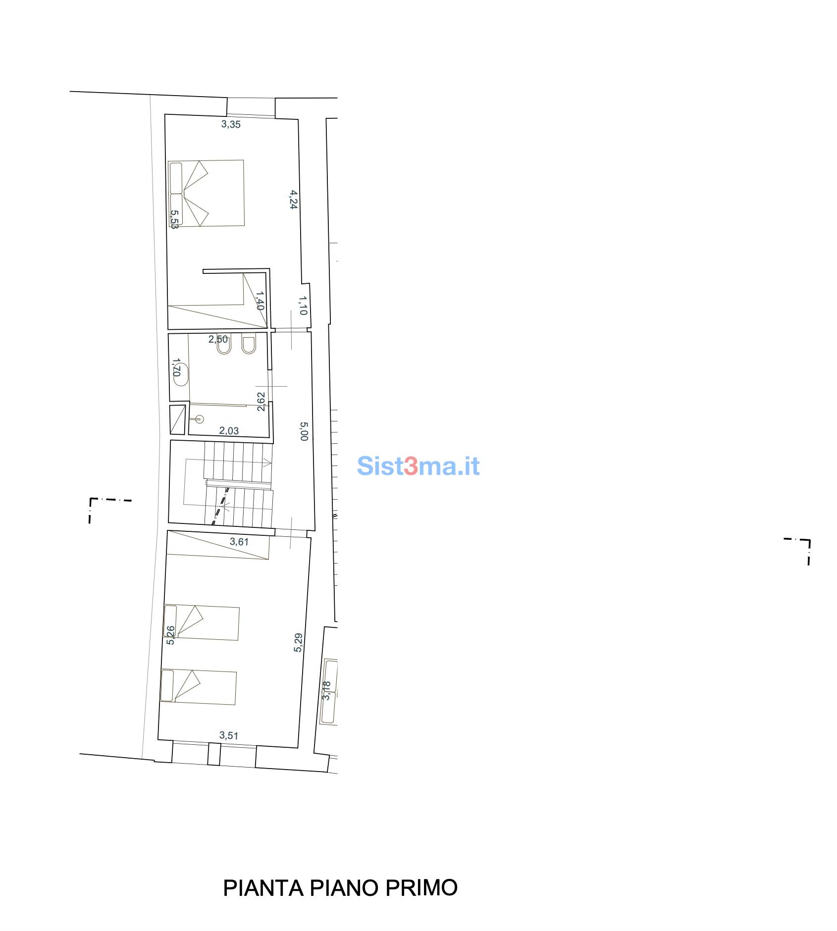
La residenza si compone da soggiorno, disimpegno, cucina, bagno e ripostiglio, a mezzo di scala interna si accede al reparto notte dove troviamo due camere matrimoniali e un bagno, sempre a mezzo di scala si accede al piano mansardato composto da camera singola, bagno, studio e vano ad uso ripostiglio.
Si tratta di una ristrutturazione totale di un grande fabbricato e ridiviso in tre unità immobiliari.
NB: le foto sono rendering solo a scopo dimostrativo.
Possibilità di scegliere la pavimentazione.
Caratteristiche
Codice:
TRTC Capa 310 B
Città:
Capannori (Capannori centro)
Categoria:
Porzione di casa
Locali:
4
Camere:
3
Bagni:
3
Mq:
140
Posti auto:
2
Mq Giardino:
35
Terrazzi:
1
Piano:
Terra
Anno:
2025
Classe energetica:
B
35
Stato Immobile:
Nuovo
Grado:
Signorile
Posizione:
Centro
Lati Liberi:
2
Giardino:
Privato
Tipo Soggiorno:
Soggiorno
Tipo Cucina:
Abitabile
Riscaldamento:
Autonomo
Tipo Riscaldam.:
Caldaia a Condensazione
Tipo Impianto:
Radiatori
Fonte Energetica:
Metano
Acqua Calda:
Autonoma
Infissi:
PVC Doppio Vetro
Serramenti:
Nuovo
Isolamento:
Presente
Isolamento termico:
Cappotto esterno
Visita l'annuncio sul tuo telefono
QR Code
Documenti
Vuoi avere più dettagli?
Cookie preference