Appartamento In Vendita a Capannori

Appartamento In Vendita a Capannori

Capannori (Capannori centro) - via Romana, 200
225.000 €
Codice:App capa 235
Caratteristiche principali
95
4
Locali
2
Camere
1
Bagni
Descrizione
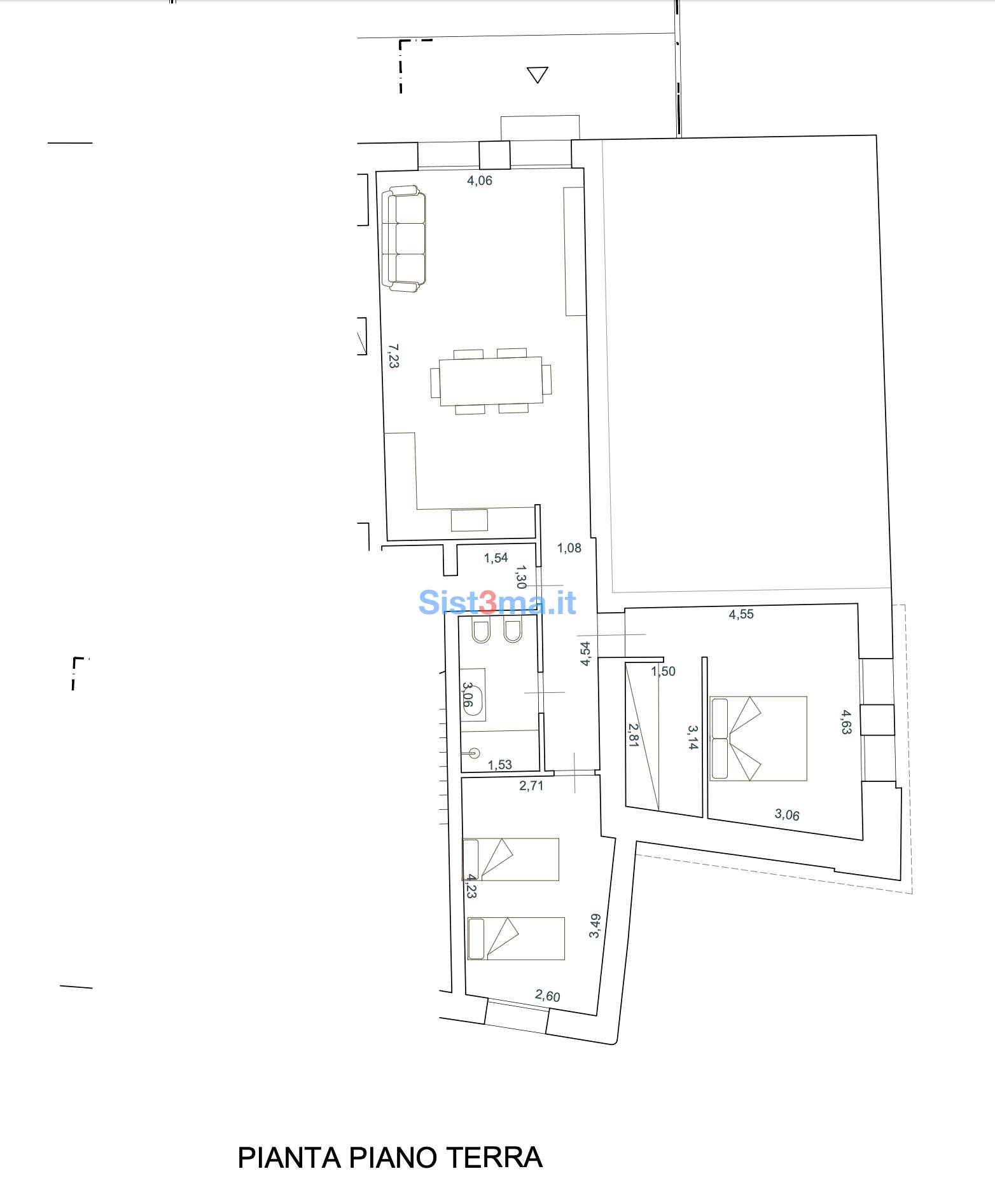
CAPANNORI CENTRO appartamento con ingresso indipendente e giardino, posto al piano terra corredato da due posti auto.
L'immobile in classe "A1" è composto da soggiorno / cucina, disimpegno, camera matrimoniale con predisposizione bagno privato, camera doppia, bagno e lavanderia.
Si tratta di una ristrutturazione totale di un grande fabbricato e ridiviso in tre unità immobiliari.
NB: le foto sono rendering solo a scopo dimostrativo.
Possibilità di porter ancora scegliere la pavimentazione.
Caratteristiche
Codice:
App capa 235
Città:
Capannori (Capannori centro)
Categoria:
Appartamento
Locali:
4
Camere:
2
Bagni:
1
Mq:
95
Posti auto:
2
Mq Giardino:
40
Piano:
Terra
Anno:
2025
Classe energetica:
A1
28
Stato Immobile:
Nuovo
Grado:
Signorile
Posizione:
Centro
Lati Liberi:
2
Giardino:
Privato
Tipo Soggiorno:
Soggiorno
Tipo Cucina:
Abitabile
Riscaldamento:
Autonomo
Tipo Riscaldam.:
Caldaia a Condensazione
Tipo Impianto:
Radiatori
Fonte Energetica:
Metano
Acqua Calda:
Autonoma
Infissi:
PVC Doppio Vetro
Serramenti:
Nuovo
Isolamento:
Presente
Isolamento termico:
Cappotto esterno
Visita l'annuncio sul tuo telefono
QR Code
Documenti
Vuoi avere più dettagli?
Cookie preference