Part de maison Dans Vente à Capannori

Part de maison Dans Vente à Capannori

Capannori (Segromigno in Piano) - segromigno
260 000 €
Code:Trtc segr 240T
Principales caractéristiques
180
7
Chambres
3
Chambres
2
Salles de bains
Description
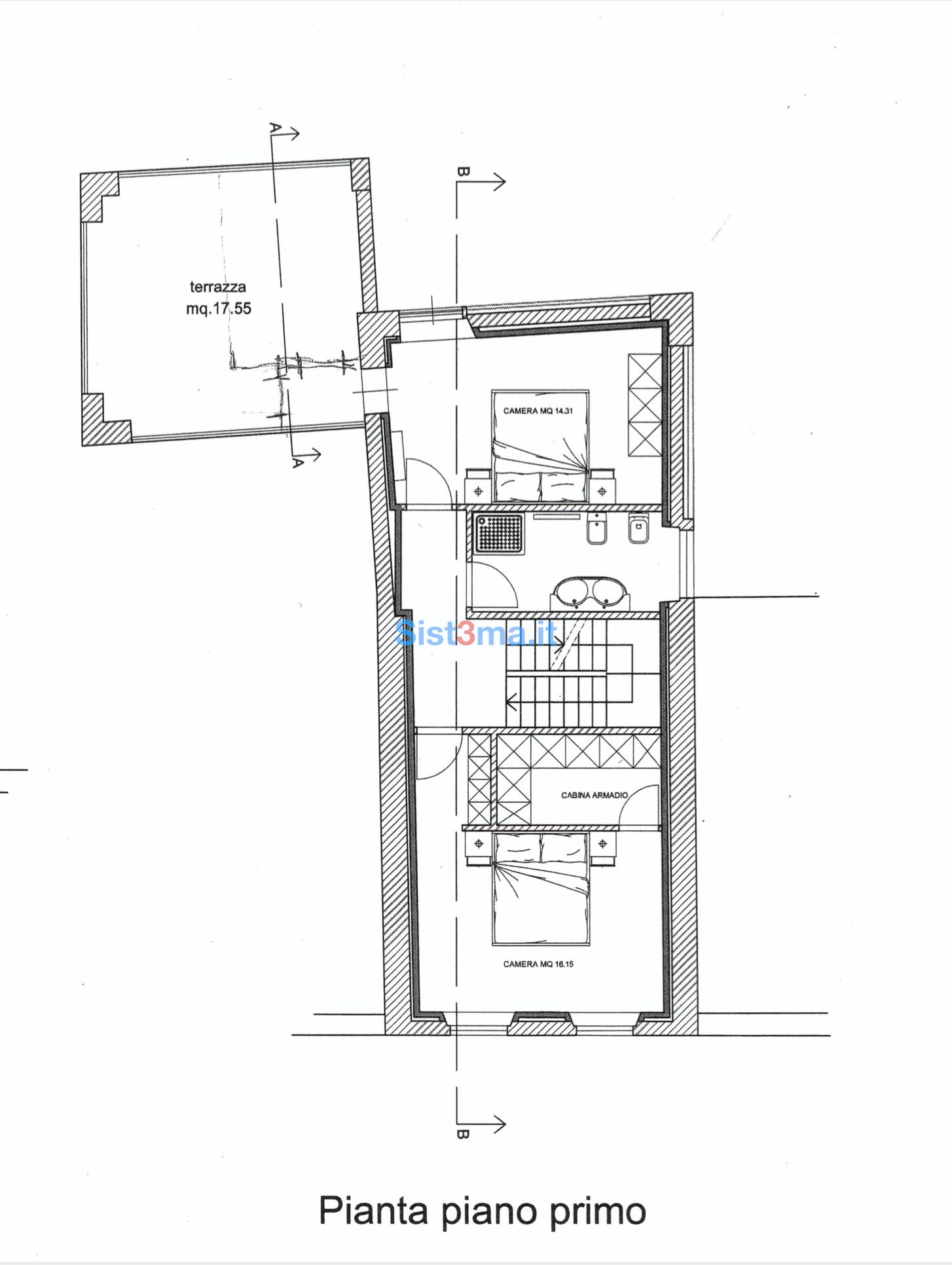
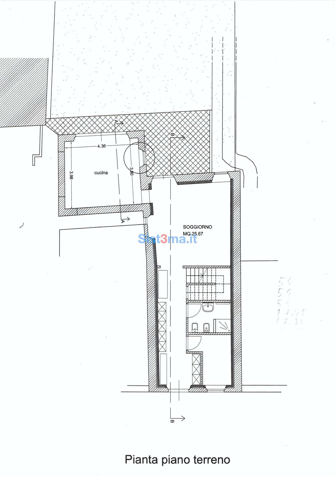
Camigliano: Maison de ville en construction de 180 mètres carrés. avec 3 chambres et deux salles de bains ainsi que 250 mètres carrés. de jardin attenant côté sud.
Le bâtiment en construction comprend un hall d'entrée, un bureau, une salle de bains, une pièce de 25 mètres carrés. et une grande cuisine de 17 m2, au moyen d'un escalier intérieur mène à la zone nuit composée de deux chambres doubles, l'une avec dressing ou avec salle de bain privée, et l'autre avec une splendide terrasse de 17 m2., couloir et grand salle de bains, un escalier intérieur mène à l'étage mansardé divisé en deux pièces à utiliser comme bureau ou autre pièce mansardée. Inclus sont trois places de parking privées et un jardin clôturé côté sud attenant à la maison de 250 m². environ. Étant un immeuble en construction, ceux qui l'achètent peuvent varier les divisions internes et choisir les finitions qui correspondent le mieux à leur goût, livraison en 6 mois. Contexte calme et paisible.
Caractéristiques
Code:
Trtc segr 240T
Ville:
Capannori (Segromigno in Piano)
Catégorie:
Part de maison
Chambres:
7
Chambres:
3
Salles de bains:
2
Mq:
180
Voiture places:
3
Mq jardin:
250
Année:
2021
Note de l'énergie:
Dans la phase d'évaluation
État immeuble:
En Construction
Degré:
Moyen
Position:
Banlieue
Panorama:
Vue Jardin
Position:
Sud Nord
Côtés libres:
2
Jardin:
Privé
Type de résidence:
Salon
Type Cuisine:
Habitable
Chauffage:
Chaufage individuel
Type Chauffage:
Caldaia a Condensazione
Tipo Impianto:
Aux sols
Fonte Energetica:
Méthane
Eau Chaude:
Autonome
Ouvertures/Fermetures:
PVC double vitrage
Fenêtres:
Nouvelles
Accessoires
Cheminée
Verres doubles
Double entrée
Système satellitaire
Entrée indépendante
Blanchisserie
Placard
Tableaux d'extérieur
Visitez l'annonce sur votre téléphone
QR Code
Vous voulez plus de détails?
Cookie preference